電液動三通分料器
用途
本產品是我公司根據市場需要與有關設計院合作開發的系列產品,是物料輸送系統中實現物料快速換向的理想設備,廣泛應用于建材、冶金、礦山、輕工、電力、糧食等行業固體顆粒和粉狀物料的輸送。
特點
該產品采用優質碳素鋼板焊接結構、具有體積小、重量輕、阻力小等特點。采用電液推桿驅動,運行平穩、故障率低、可以快速切換物料流向,也可以接受調節或變送單元信號進行自動控制。
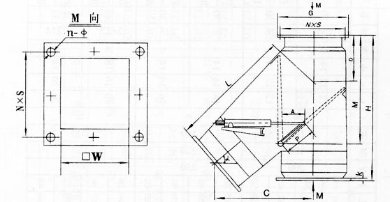
工作原理
該產品主要由閥體、閥軸、閥板、曲柄機構、電液推桿等組成,工作時電液推桿的直線往復運動通過曲柄帶動閥軸、閥板作一定角度的擺動,從而輸送物料、控制物料的流向及流量。
主要性能參數
| 適用介質 | 含塵固體顆粒或粉料 | 電源電壓 | 380V50Hz | ||
| 適用溫度 | ≤350℃ | 調節特性 | 常規情況二位開關式 | ||
| 電液推桿型號 | DYT系列 | 特殊情況4-20mA電信號 | |||
1、DSF-□A(B)□型電液動三通分料器
2.DSF-□C(D、E)□型電液動三通分料器
3.DSF-□F□型電液動三通分料器
4.DCSF-□-□型電液動三通分料器
產品特點
DCSF型電液動船式三通分料器,采用船式溜槽結構,使物料更加暢通;增裝導向輥,保持較小的負角間隙,有效的防止物料進入間隙內;進煤有“漏斗”狀護架,使物料直接進入船體內。由于采用拼裝結構,維修也比較方便。
5.DBSF-□-□型電液動三通分料器
產品特點
DBSF型擺動三通分料器采用內套筒換向結構,使物料與三通殼休分離, 這樣就不會在殼壁上積料或結疤、不存在卡住套筒轉動不靈活的問題,也不會出現漏料、混料現象。 操作靈活、省力。



